全國定制咨詢熱線
0769-23103048
氣液增壓缸設備行業優選品牌!

玖容氣液增壓缸型號共有十多種,每種型號都有不同的尺寸參數,為了方便用戶快速方便地安裝所購買的氣液增壓缸,下面分享下玖容11款常用氣液增壓缸尺寸參數。
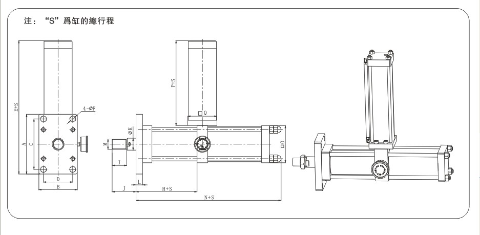
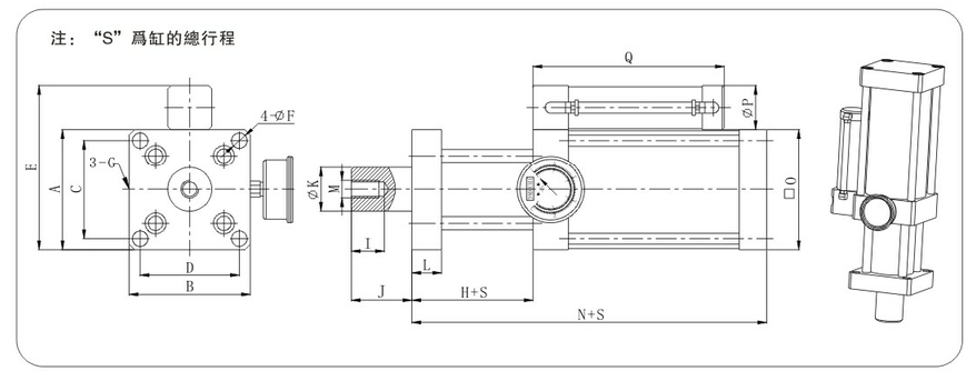
1、JRA標準氣液增壓缸尺寸參數


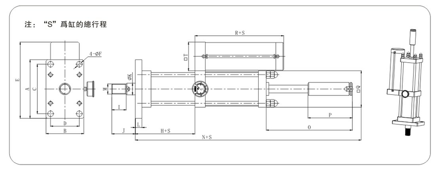
2、JRAA標準型水平安裝氣液增壓缸尺寸參數


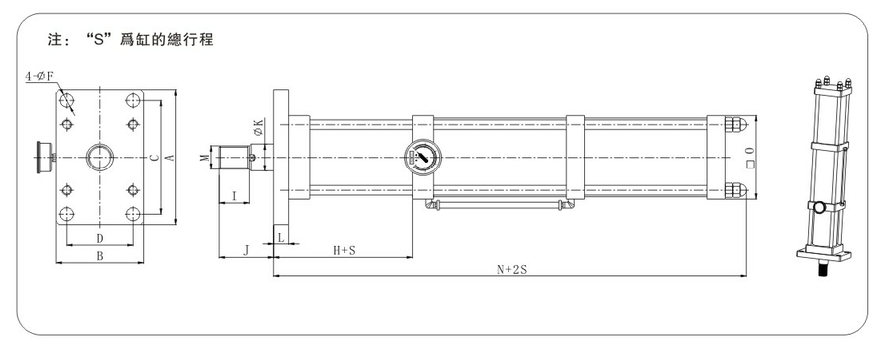
3、JRB力行程可調氣液增壓缸尺寸參數


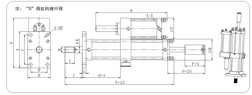
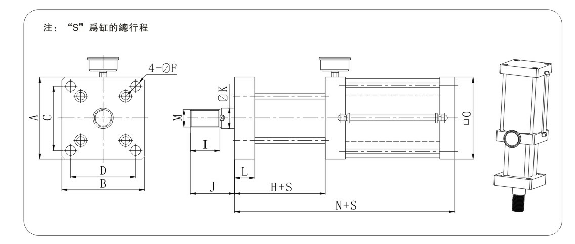
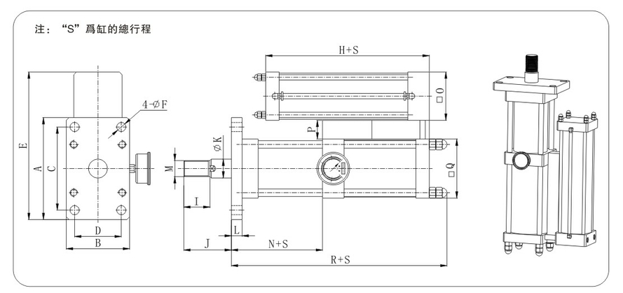
4、JRC總行程可調氣液增壓缸尺寸參數


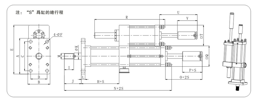
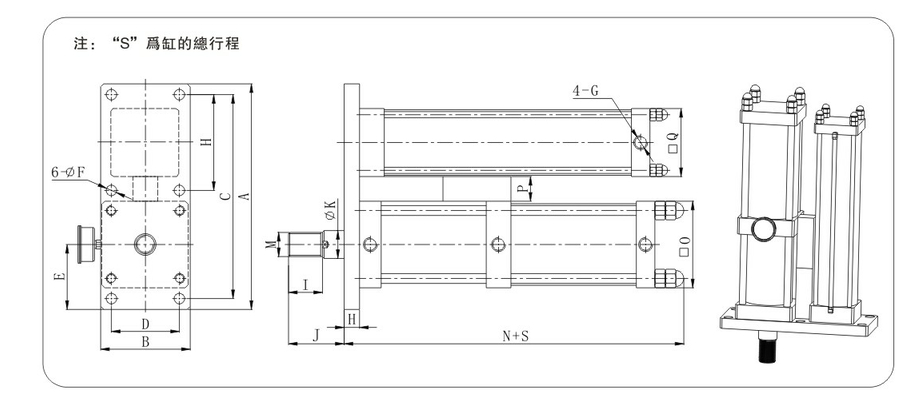
5、JRD總行程及力行程可調氣液增壓缸尺寸參數


6、JRE直壓式氣液增壓缸尺寸參數


7、JRF快速單列式氣液增壓缸尺寸參數


8、JRG復合式氣動液壓缸尺寸參數


9、JRM快速型氣液增壓缸尺寸參數


10、JRP并列式氣液增壓缸尺寸參數


11、JRT并列倒裝型氣液增壓缸尺寸參數


備注:1、以上數據為標準型氣液增壓缸尺寸參數,為玖容自定的標準數據,如因實際工作需要,可定制特殊規格。
2、編號“N”是以20mm內氣液增壓缸計算,如增壓力行程長超出20mm時,請以玖容工程圖紙實際尺寸參數為準。
3、編號“R”是以20mm內氣液增壓缸計算,如增壓力行程長超出20mm時,請以玖容工程圖紙實際尺寸參數為準。
4、玖容氣液增壓缸尺寸參數表中出力噸位均以6kg/cm工作氣壓計算。
